Informations principales
Type d'offre : À vendre Localisation : Saint-Orens de Gameville Prix : À partir de 329 000 € Type : T4 Date de livraison : LivrésDescription
Localisation
À Saint-Orens, au cœur du quartier Bousquet-Pradelle dans un environnement résidentiel au calme, découvrez les DUPLEX DE BOUQUET.
Les duplex
Quatre maisons en duplex de type T4 mitoyennes sont proposées. Une copropriété à taille humaine !
Des prestations de qualité tel du parquet dans les chambres, une excellente isolation tant phonique que thermique, des salles de bains parfaitement équipées avec de nombreux placards offrent confort, bien être et fonctionnalité. Chaque maison dispose d’un jardin végétalisé à l’intimité préservée et des baies vitrées garantissant une grande luminosité ouvrant sur des terrasses.
Vous aurez la possibilité de bénéficier à terme d’un cellier à usage privatif en sous-sol d’une surface allant de 20 à 30 m² (prévoir environ 3 000€ en sus du prix de vente).
Une situation privilégiée…
Au sein d’un quartier à vocation résidentielle, la Villa Bousquet garantit un environnement agréable.
Pour les loisirs, découvrez à proximité la salle Altigone, la salle de spectacles de Saint-Orens, où se déroulent tout au long de l’année différents festivals ou expositions. Pour vos achats, choisissez entre le centre commercial Leclerc de Saint-Orens à 2 km, et le centre commercial Carrefour Labège à moins de1.5 km . Cette zone commerciale propose 120 boutiques, de nombreux restaurants et un cinéma. Enfin, chaque samedi, rendez-vous au marché de plein vent qui se déroule à côté de la Mairie.
Saint-Orens, commune de plus de 11 500 habitants limitrophe de Toulouse, dispose de transports en connexion avec le métro toulousain, facilitant ainsi les déplacements de chacun.
Un excellent investissement et une adresse où il fait bon vivre…
Programmes
| Lot | Type | Surface | Prix | Les + | État | Plans |
|---|---|---|---|---|---|---|
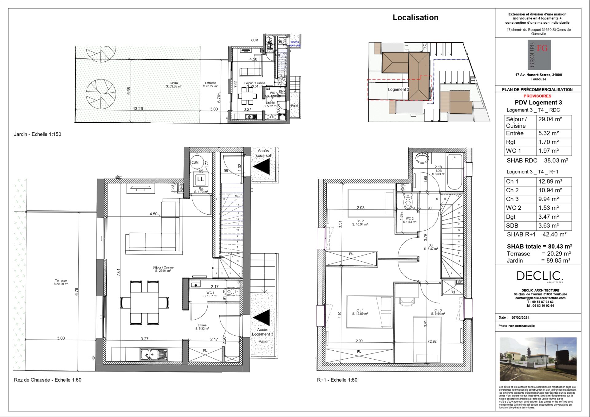
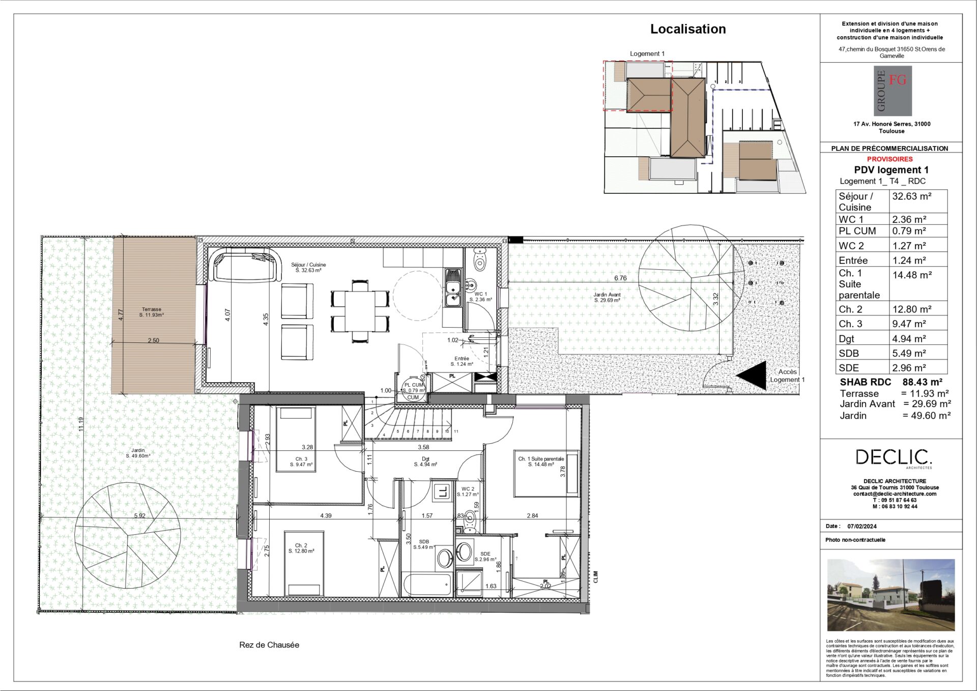
| 1 | T4 | 88,43 m² | 329 000 € | Éligible PTZ Frais de notaire réduits Jardin Livré Parking extérieur Terrasse | Disponible | |
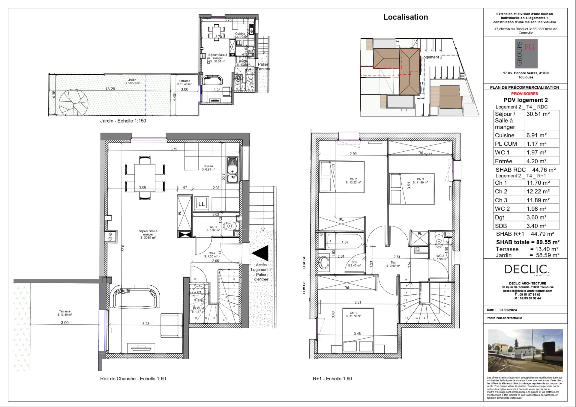
| 2 | T4 | 89,55 m² | 329 000 € | Éligible PTZ Frais de notaire réduits Intime Jardin Livré Petite copropriété | Disponible | |
| 3 | T4 | 80,43 m² | 329 000 € | Intime Livré Petite copropriété | Disponible |





























